37 Sheuchan Street

Stranraer. DG9 0EA

UNDER OFFER - £155,000

Photograph of 37 Sheuchan Street, Stranraer

Photograph Gallery

Please click on a thumbnail, below, to view a photograph in more detail.

Photograph of 37 Sheuchan Street, Stranraer Photograph of 37 Sheuchan Street Photograph of Hall Photograph of Lounge Photograph of Lounge Photograph of Lounge Photograph of Dining Kitchen Photograph of Dining Kitchen Photograph of Dining Kitchen Photograph of Dining Kitchen Photograph of Dining Kitchen view Photograph of Dining Room/5th Bedroom Photograph of Shower Room Photograph of Landing Photograph of WC Photograph of Bedroom 1 Photograph of Bedroom 2 Photograph of Bedroom 2 Photograph of Bedroom 4 Photograph of Bedroom 3 Photograph of Garden Photograph of Garden Photograph of Garden Photograph of Garden Photograph of Garden Photograph of Garden

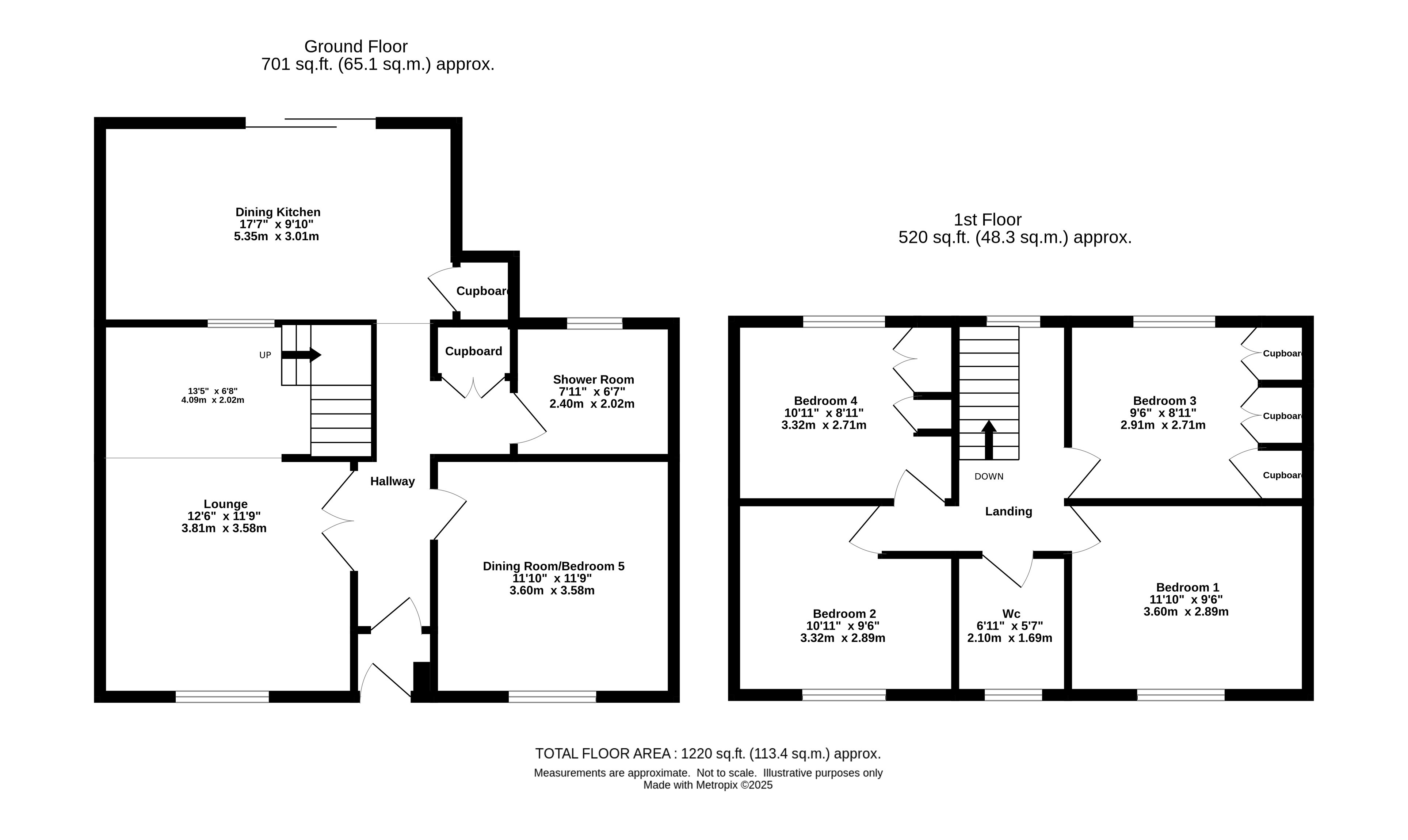
Floor Plan

Please click on the floor plan, below, to enlarge.

Floor Plan for 37 Sheuchan Street, Stranraer

Property Overview


5
Bedrooms
0
En-suite
1
Public Rooms
2
Bathrooms
Yes
Garden

An opportunity arises to acquire a charming 5 bedroom terraced house, just a stone's throw away from the picturesque Loch Ryan shoreline. Located conveniently close to Sheuchan Primary School, this immaculately maintained property boasts generous family accommodation spread over two levels. Step inside to discover a splendid 'dining' kitchen, with sliding patio doors leading to the rear garden.

 

The house also features a delightful shower room, tasteful decor throughout, the use of oak internal doors, gas fired central heating and uPVC double glazing.

 

There is an enclosed area of very well-maintained, fully landscaped garden ground to the rear which has been laid out for ease of maintenance.

 

  • Located only a short walk from Loch Ryan shoreline
  • Easy access to Sheuchan Primary School
  • Immaculate condition throughout
  • Generous family accommodation over two levels
  • Splendid 'dining' kitchen
  • Delightful shower room
  • Tasteful decor throughout
  • Attractive internal woodwork
  • Gas central heating & uPVC double glazing
  • Fully landscaped garden ground to the rear


Council Tax

D

Energy Rating

EPC = C

Viewing

By appointment with SWPC.

Entry

Negotiable.

More properties in Stranraer (54)


Photograph of 75 Sheuchan Street, Stranraer

75 Sheuchan Street, Stranraer

PLEASE NOTE: A closing date has been set for Monday, 20th of October at 12 Noon. All formal offers should be submitted via a Scottish solicitor to SWPC by the appointed time. Offers Over - £90,000


Photograph of 11c Dunbar Court, Stranraer

11c Dunbar Court, Stranraer

PRICE REDUCTION: Offers Over - £54,995


Photograph of 3 Clenoch Street, Stranraer

3 Clenoch Street, Stranraer

PRICE CHANGE - Offers Over - £66,000


Photograph of 'The Grapes', 4-6 Bridge Street, Stranraer

'The Grapes', 4-6 Bridge Street, Stranraer

PRICE REDUCTION - Offers around - £235,000


Photograph of 'Wellington House', Stranraer

'Wellington House', Stranraer

Price Reduction Offers Over - £219,500


Photograph of 9 Lewis Street, Stranraer

9 Lewis Street, Stranraer

PRICE REDUCTION Offers Over - £129,000

Galloway & Ayrshire Properties

You may also like the following properties from our partners Galloway & Ayrshire Properties.


Photograph of 'The Meadows', London Road, Stranraer

'The Meadows', London Road, Stranraer

PLEASE NOTE: A closing date has been set for Monday, 20th of October at 12 Noon. All formal offers should be submitted via a Scottish solicitor to SWPC by the appointed time. Offers Over - £325,000