Ryan Bank, Main Street

Cairnryan. DG9 8QX

UNDER OFFER - £110,000

Photograph of Ryan Bank, Main Street, Cairnryan

Photograph Gallery

Please click on a thumbnail, below, to view a photograph in more detail.

Photograph of Ryan Bank, Main Street, Cairnryan Photograph of View Photograph of Lounge Photograph of Lounge Photograph of Kitchen Photograph of Kitchen Photograph of Dining Area Photograph of Dining Area Photograph of WC Photograph of Bathroom Photograph of Bathroom Photograph of Bedroom 1 Photograph of Bedroom 1 Photograph of Bedroom 2 Photograph of Garden Photograph of Rear Photograph of Garden Photograph of Garden Photograph of Garden Photograph of View

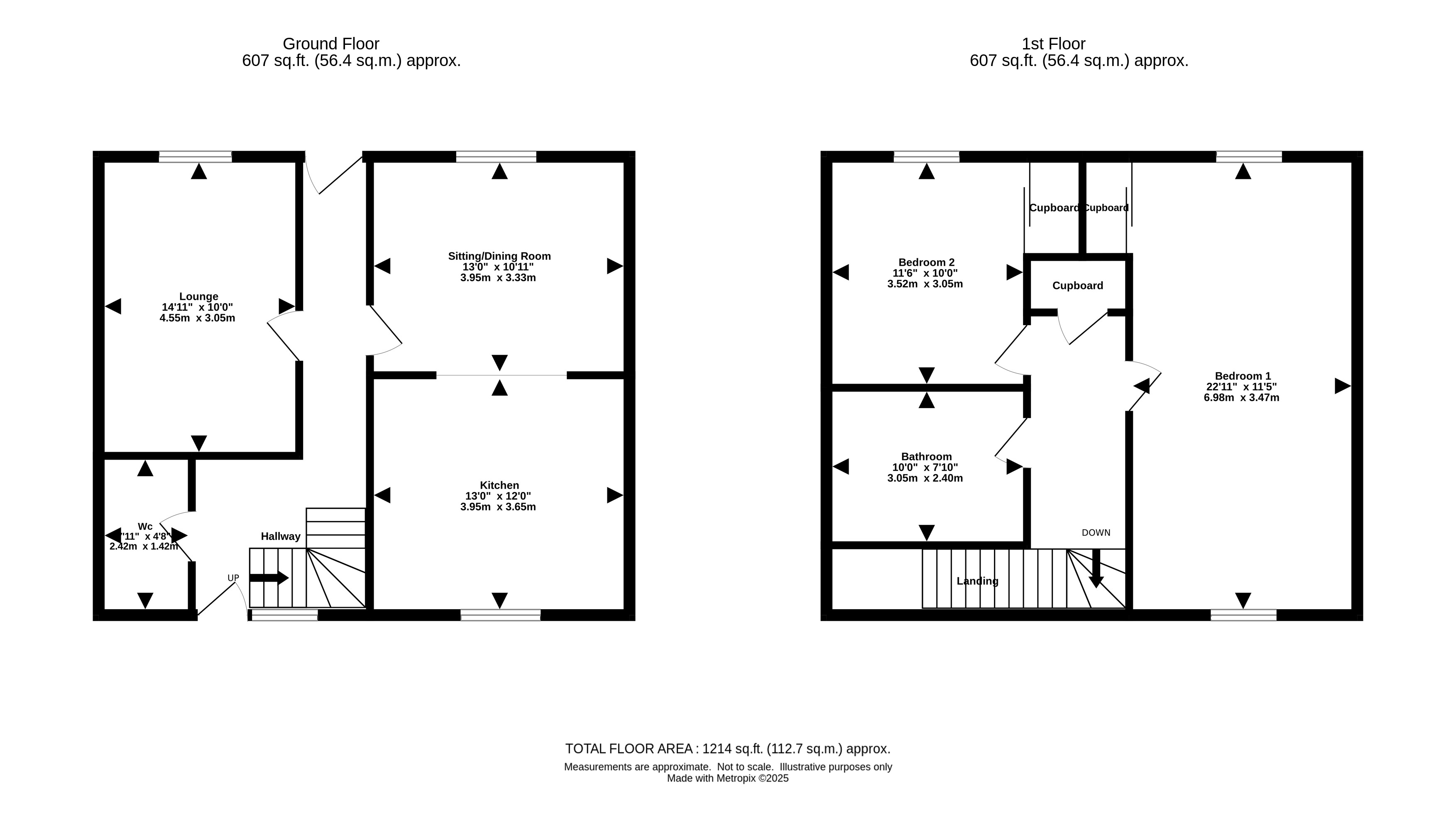
Floor Plan

Please click on the floor plan, below, to enlarge.

Floor Plan for Ryan Bank, Main Street, Cairnryan

Property Overview


2
Bedrooms
0
En-suite
2
Public Rooms
2
Bathrooms
Yes
Garden

Nestled in a picturesque setting, this 2-bedroom terraced house boasts charming characteristics and modern conveniences. The traditional stone-built property features a ground floor WC, an open plan dining kitchen offering a perfect space for entertaining, and showcases stunning sea views to enhance every-day living. The first floor houses two bedrooms that ensures generous upper level accommodation, alongside a spacious bathroom. Additionally, the property offers generous sized enclosed garden grounds, ideal for relaxation and outdoor activities.

Step outside to discover the landscaped and tiered garden at the rear of the property. This outdoor space includes attractive borders, a chipped and patio area a rotary clothes drier, a traditionally built shed, a storage shed, and a most pleasant summerhouse. Other amenities found in the garden are a greenhouse, an outside water supply, and a sky dish. For added privacy and security, the garden is fully enclosed, providing a tranquil retreat for residents to enjoy all year round.

  • Traditional stone built property
  • Ground floor WC
  • Open plan dining kitchen
  • Stunning sea views
  • Spacious bathroom
  • Generous sized enclosed garden grounds
  • Newly installed kitchen with integrated appliances
  • Newly fitted front & rear entrance doors


Council Tax

C

Energy Rating

EPC = E

Viewing

By appointment with SWPC.

Entry

Negotiable.

More properties in Cairnryan (1)