17 Belmont Road

Stranraer. DG9 7AU

Offers Over - £118,000

Photograph of 17 Belmont Road, Stranraer

Photograph Gallery

Please click on a thumbnail, below, to view a photograph in more detail.

Photograph of 17 Belmont Road, Stranraer Photograph of Lounge Photograph of Lounge Photograph of Kitchen Photograph of Kitchen Photograph of WC Photograph of Bedroom 1 Photograph of Bedroom 1 Photograph of Bedroom 3 Photograph of Bedroom 2 Photograph of Shower Room Photograph of Garden Photograph of Garden

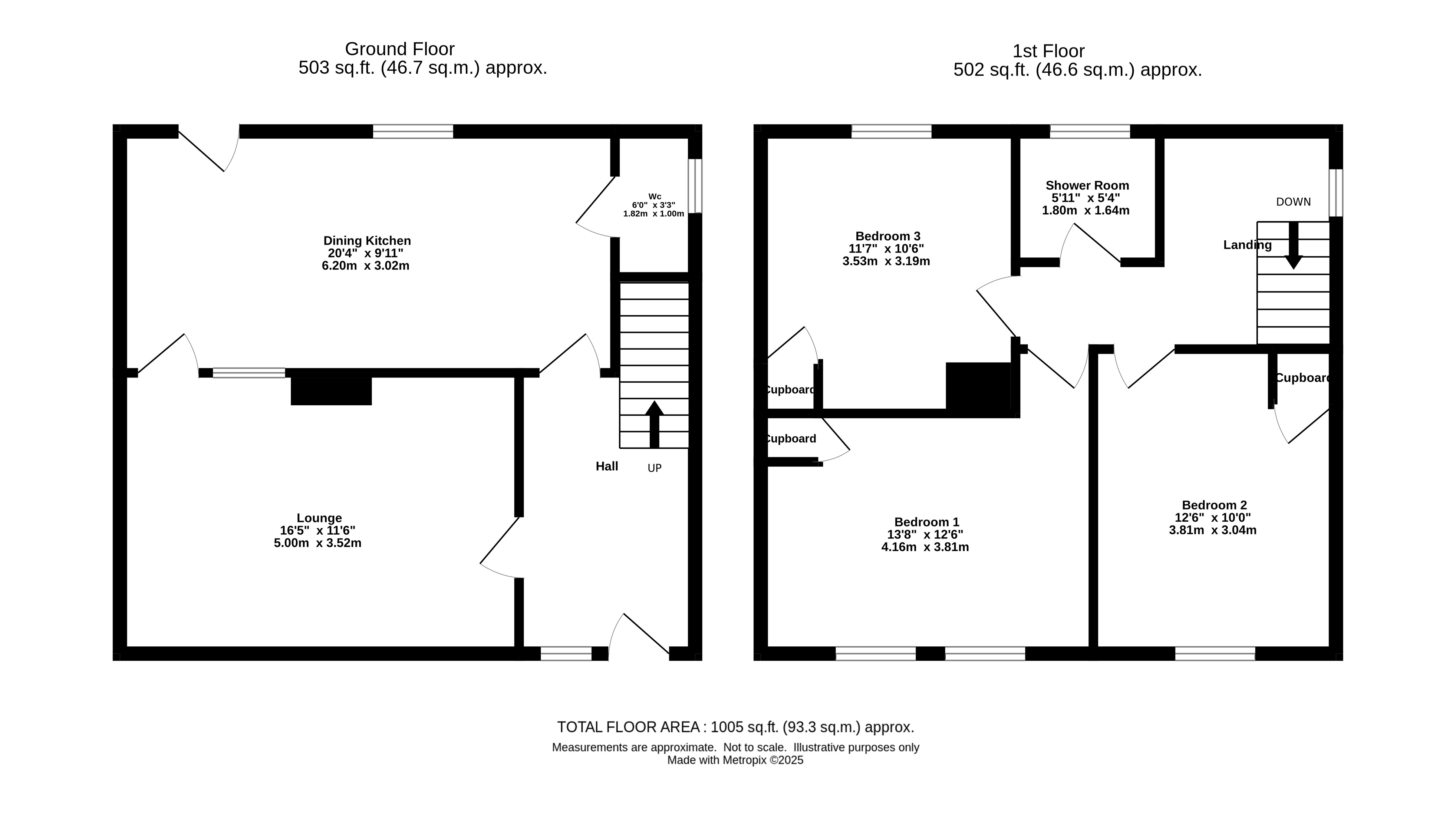
Floor Plan

Please click on the floor plan, below, to enlarge.

Floor Plan for 17 Belmont Road, Stranraer

Property Overview


3
Bedrooms
0
En-suite
1
Public Rooms
2
Bathrooms
Yes
Garden

Situated within the heart of a sought-after residential area, this 3-bedroom semi-detached house presents an ideal opportunity for the discerning first-time buyer. Situated in close proximity to Belmont Primary School, this property offers convenient access to educational facilities. Boasting a spacious family layout across two levels, the residence features a modern 'dining' kitchen, a contemporary shower/wet room and a ground floor WC for added convenience.

Of traditional construction under a re-tiled roof the property benefits from gas central heating, uPVC double glazing and external insulation.

The easily maintained garden ground enhances the property's appeal, with a detached garage and off-road parking ensuring practicality and ease of access for residents.

  • Located within a popular residential area
  • Close proximity to Belmont Primary School
  • Ideally suited to the first time buyer
  • Spacious family accommodation over two levels
  • Modern 'dining' kitchen
  • Modern shower/wet room
  • Ground floor WC
  • Gas central heating and uPVC double glazing
  • Easily maintained garden ground
  • Detached garage & off-road parking


General

Integrated kitchen appliances along with the fridge freezer, freezer and washing machine are included in the sale.

Council Tax

B

Energy Rating

EPC = C

Viewing

By appointment with SWPC.

Entry

Negotiable.

More properties in Stranraer (56)


Photograph of 11c Dunbar Court, Stranraer

11c Dunbar Court, Stranraer

PRICE REDUCTION: Offers Over - £54,995


Photograph of 3 Clenoch Street, Stranraer

3 Clenoch Street, Stranraer

PRICE CHANGE - Offers Over - £66,000


Photograph of 'The Grapes', 4-6 Bridge Street, Stranraer

'The Grapes', 4-6 Bridge Street, Stranraer

PRICE REDUCTION - Offers around - £235,000


Photograph of 'Wellington House', Stranraer

'Wellington House', Stranraer

Price Reduction Offers Over - £219,500


Photograph of 9 Lewis Street, Stranraer

9 Lewis Street, Stranraer

PRICE REDUCTION Offers Over - £129,000

Galloway & Ayrshire Properties

You may also like the following properties from our partners Galloway & Ayrshire Properties.