46 St Ninians Avenue

Stranraer. DG9 7BE

Offers Over - £80,000

Photograph of 46 St Ninians Avenue, Stranraer

Photograph Gallery

Please click on a thumbnail, below, to view a photograph in more detail.

Photograph of 46 St Ninians Avenue, Stranraer Photograph of View Photograph of Hall Photograph of Lounge Photograph of Lounge Photograph of Kitchen Photograph of Kitchen Photograph of Landing Photograph of Shower Room Photograph of Bedroom 1 Photograph of Bedroom 2 Photograph of Garden Photograph of Garden

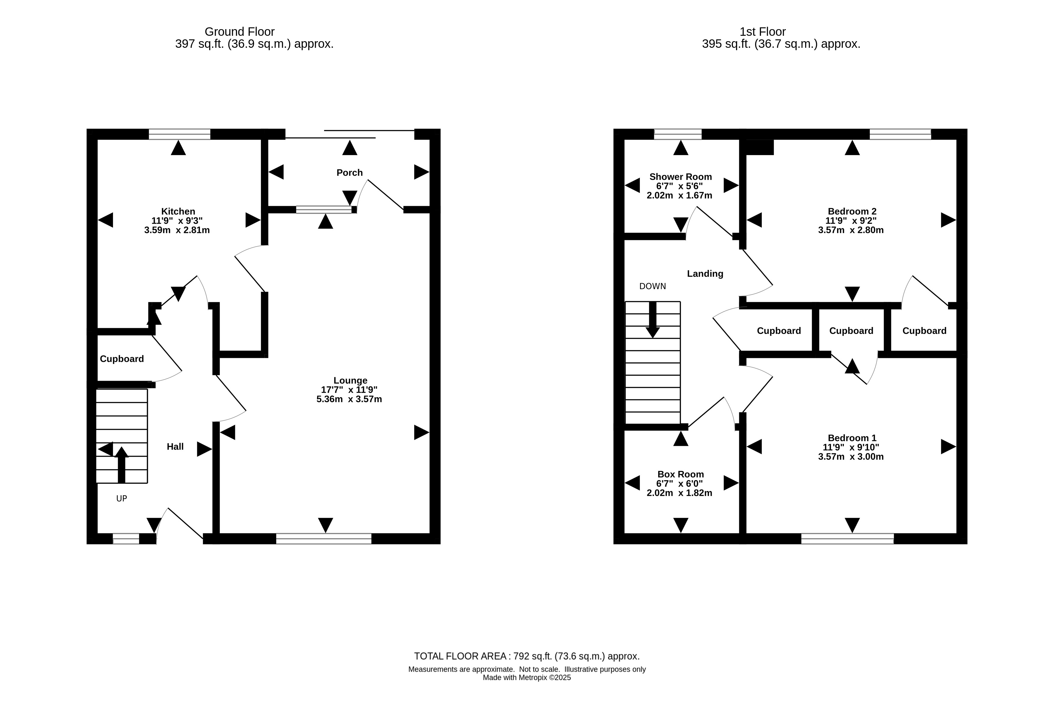
Floor Plan

Please click on the floor plan, below, to enlarge.

Floor Plan for 46 St Ninians Avenue, Stranraer

Property Overview


2
Bedrooms
0
En-suite
1
Public Rooms
1
Bathrooms
Yes
Garden

Located in a popular residential location, this 2-bedroom end-of-terrace house presents an excellent opportunity for those seeking a comfortable family home. The well-maintained villa boasts a modern fitted kitchen and is complemented by a delightful shower room for added convenience. The property also benefits from some new internal doors, oil fired central heating and uPVC double glazing.

Stepping outside, the property is set amidst its own area of easily maintained garden grounds.

Ideally suited to the first time buyer.

  • Well-maintained end of terrace villa
  • Comfortable family accommodation over two levels
  • Modern fitted kitchen
  • Delightful shower room
  • Some new internal doors
  • Oil-fired central heating and uPVC double glazing
  • Easily maintained garden grounds


Council Tax

B

Energy Rating

EPC = E

Viewing

By appointment with SWPC.

Entry

Negotiable.

Property Video


More properties in Stranraer (55)


Photograph of 11c Dunbar Court, Stranraer

11c Dunbar Court, Stranraer

PRICE REDUCTION: Offers Over - £54,995


Photograph of 3 Clenoch Street, Stranraer

3 Clenoch Street, Stranraer

PRICE CHANGE - Offers Over - £66,000


Photograph of 'The Grapes', 4-6 Bridge Street, Stranraer

'The Grapes', 4-6 Bridge Street, Stranraer

PRICE REDUCTION - Offers around - £235,000


Photograph of 'Wellington House', Stranraer

'Wellington House', Stranraer

Price Reduction Offers Over - £219,500


Photograph of 9 Lewis Street, Stranraer

9 Lewis Street, Stranraer

PRICE REDUCTION Offers Over - £129,000