31 Nursery Avenue

Stranraer. DG9 0BT

Offers Over - £100,000

Photograph of 31 Nursery Avenue, Stranraer

Photograph Gallery

Please click on a thumbnail, below, to view a photograph in more detail.

Photograph of 31 Nursery Avenue, Stranraer Photograph of Garden Photograph of Hall Photograph of Hall Photograph of Lounge Photograph of Lounge Photograph of Dining Kitchen Photograph of Dining Kitchen Photograph of Dining Kitchen Photograph of Dining Kitchen Photograph of Bathroom Photograph of Bathroom Photograph of Bedroom Photograph of Bedroom Photograph of Bedroom Photograph of Bedroom 3 Photograph of Bedroom 3 Photograph of Garden Photograph of Garden Photograph of Garden Photograph of Garden Photograph of Garden

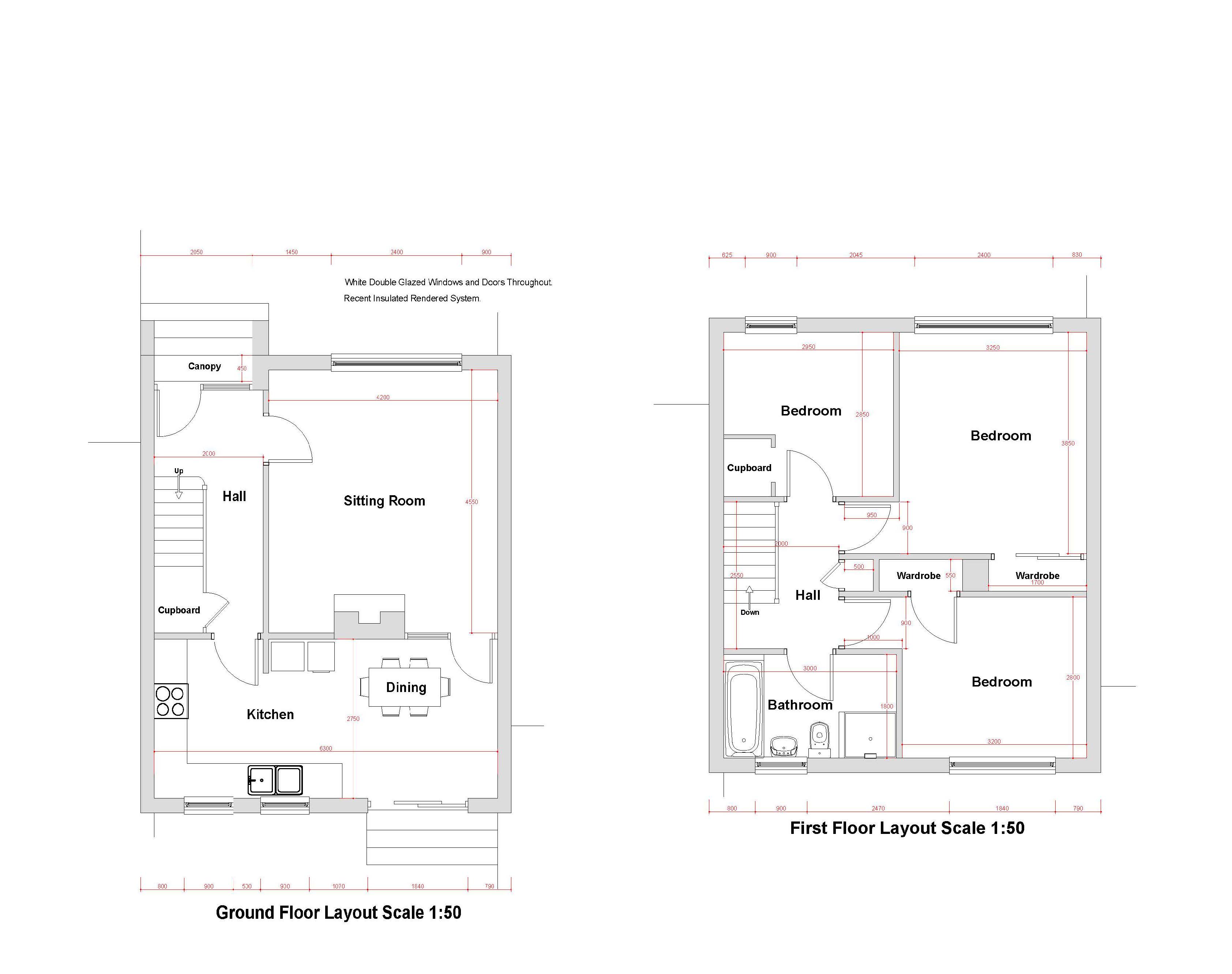
Floor Plan

Please click on the floor plan, below, to enlarge.

Floor Plan for 31 Nursery Avenue, Stranraer

Property Overview


3
Bedrooms
0
En-suite
1
Public Rooms
1
Bathrooms
Yes
Garden

Introducing this charming 3-bedroom terraced house, an ideal first-time purchase awaits. Boasting a spacious interior, this property features gas-fired central heating, full UPVC double glazing, and a fully enclosed garden, presenting an enticing opportunity for those seeking a walk-in condition home or a potential buy-to-let investment. With three bedrooms offering ample accommodation, this residence is sure to impress with its practicality and comfort.

Sliding patio doors lead to the fully enclosed rear garden, featuring a generous paved patio area, gravel border, and convenient timber shed. Paved steps beckon towards the rear pedestrian access, all enclosed within timber boundary fencing. The front entrance is equally welcoming, accessible through fully enclosed grounds with concrete steps and pathway, complemented by a generous tiered gravel border and brick-built boundary wall.

  • Spacious terraced property
  • Ideal first time purchase
  • Three bedrooms
  • Gas fired central heating
  • Full UPVC double glazing
  • Fully enclosed garden grounds
  • Walk in condition
  • Potential buy to let investment


Council Tax

B

Energy Rating

EPC = C

Viewing

By appointment with SWPC.

Entry

Negotiable.

More properties in Stranraer (55)


Photograph of 11c Dunbar Court, Stranraer

11c Dunbar Court, Stranraer

PRICE REDUCTION: Offers Over - £54,995


Photograph of 3 Clenoch Street, Stranraer

3 Clenoch Street, Stranraer

PRICE CHANGE - Offers Over - £66,000


Photograph of 'The Grapes', 4-6 Bridge Street, Stranraer

'The Grapes', 4-6 Bridge Street, Stranraer

PRICE REDUCTION - Offers around - £235,000


Photograph of 'Wellington House', Stranraer

'Wellington House', Stranraer

Price Reduction Offers Over - £219,500


Photograph of 9 Lewis Street, Stranraer

9 Lewis Street, Stranraer

PRICE REDUCTION Offers Over - £129,000