53 Sun Street

Stranraer. DG9 7JL

To Let: £600

Photograph of 53 Sun Street, Stranraer

Photograph Gallery

Please click on a thumbnail, below, to view a photograph in more detail.

Photograph of 53 Sun Street, Stranraer

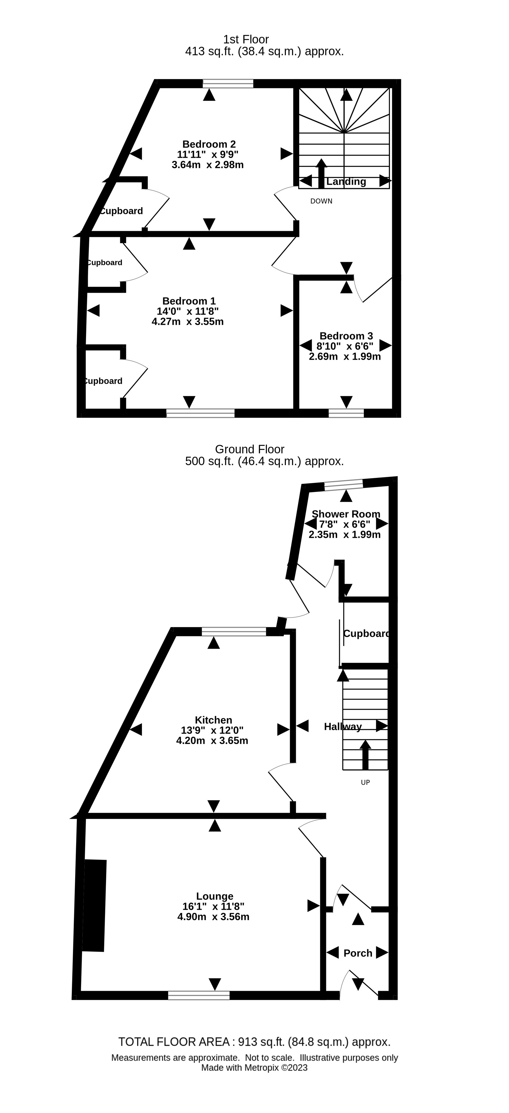
Floor Plan

Please click on the floor plan, below, to enlarge.

Floor Plan for 53 Sun Street, Stranraer

Property Overview


3
Bedrooms
0
En-suite
1
Public Rooms
1
Bathrooms
Yes
Garden

An opportunity to let a terraced property, conveniently located within easy reach of the town centre and all major amenities. The property is in good condition throughout having been recently renovated.

It benefits from a spacious kitchen, ground floor shower room and gas central heating. There is a small, very easily maintained garden to the rear.

 

HALLWAY, LOUNGE, KITCHEN, SHOWER ROOM, 3 BEDROOMS, GARDEN

 

Landlord Registration – 1789349/170/16092

Council Tax Band - B

EPC – E

Available for immediate entry

£600pcm + £600 deposit

 

Please see below for our application form. If you would like to apply, please complete the form, filling in every section, and return it to us at property@swpc.co.uk

All applications should be submitted by 15/11/25.


Schedule

(Rental Application Form_4.pdf)

Schedule Details Prepared:
4th November 2025


Council Tax

B

Energy Rating

EPC = E

Viewing

By appointment with SWPC.

Entry

Negotiable.

More properties in Stranraer (61)


Photograph of 'Fourtrees', Seabank Road, Stranraer

'Fourtrees', Seabank Road, Stranraer

PLEASE NOTE: A closing date has been set for Thursday, 11th of December 2025 at 12 Noon. All formal offers must be submitted via a Scottish solicitor to SWPC by the appointed time. Offers Over - £190,000


Photograph of 'Kirkston', Stoneykirk Road, Stranraer

'Kirkston', Stoneykirk Road, Stranraer

PRICE REDUCTION: Offers Over - £110,000


Photograph of 'The Grapes', 4-6 Bridge Street, Stranraer

'The Grapes', 4-6 Bridge Street, Stranraer

PRICE REDUCTION - Offers around - £235,000


Photograph of 9 Lewis Street, Stranraer

9 Lewis Street, Stranraer

PRICE REDUCTION Offers Over - £129,000