'Dunskey Cottage, 6 Colonel Street

Portpatrick. DG9 8JU

Offers Over - £165,000

Photograph of 'Dunskey Cottage, 6 Colonel Street, Portpatrick

Photograph Gallery

Please click on a thumbnail, below, to view a photograph in more detail.

Photograph of 'Dunskey Cottage, 6 Colonel Street, Portpatrick Photograph of Lounge Photograph of Lounge Photograph of Kitchen Photograph of Kitchen Photograph of Bathroom Photograph of Bathroom Photograph of Landing Photograph of Shower Room Photograph of Shower Room Photograph of Bedroom 1 Photograph of Bedroom 1 Photograph of Bedroom 2 Photograph of Bedroom 3 Photograph of Garden Photograph of Garden

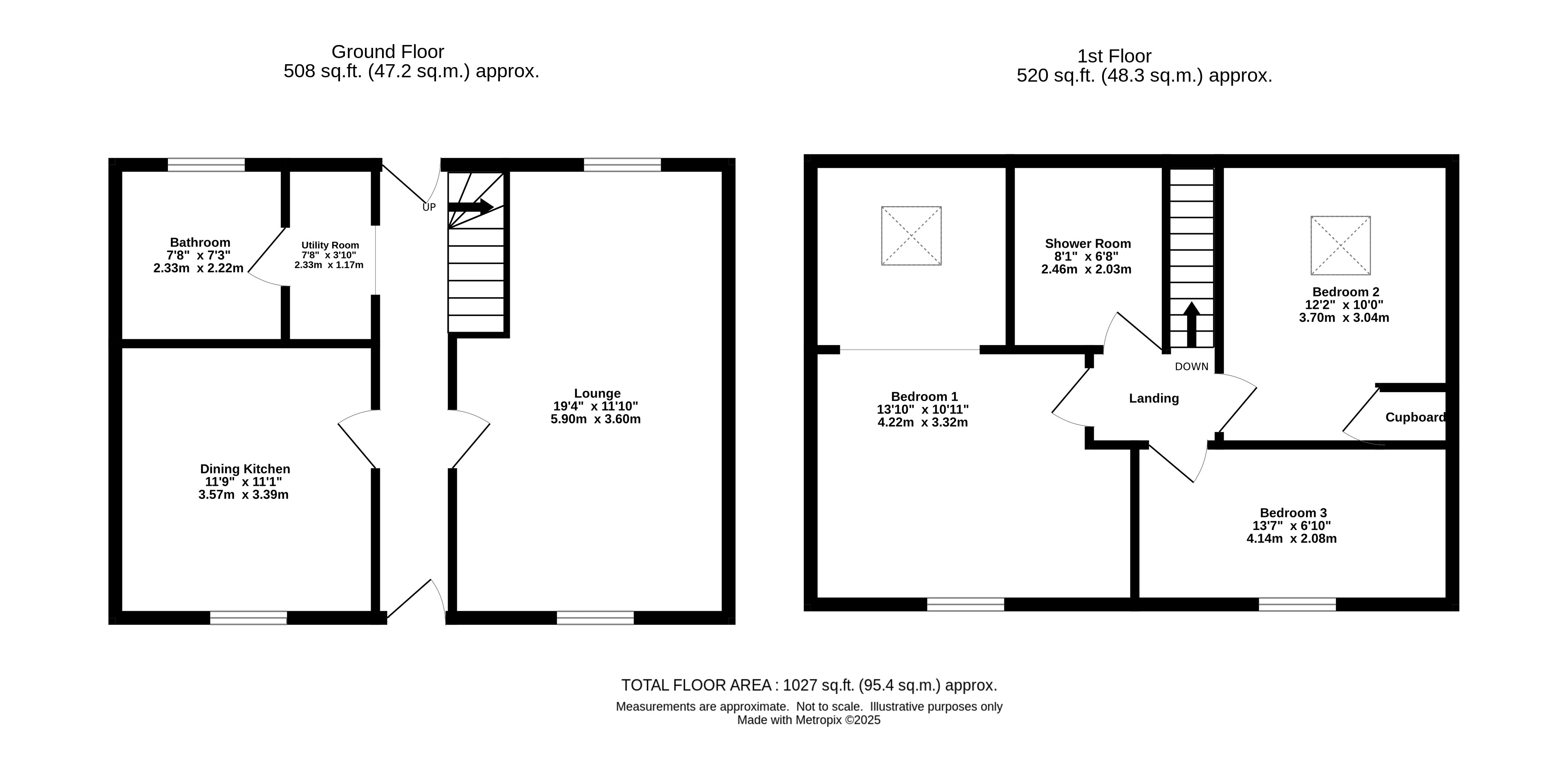
Floor Plan

Please click on the floor plan, below, to enlarge.

Floor Plan for 'Dunskey Cottage, 6 Colonel Street, Portpatrick

Property Overview


3
Bedrooms
0
En-suite
1
Public Rooms
2
Bathrooms
Yes
Garden

Welcome to this charming 3-bedroom terraced house situated within the highly sought-after seaside village of Portpatrick. Boasting a prime location only a stone's throw from the picturesque promenade, this property offers a unique opportunity to embrace coastal living at its finest.

Of traditional construction under a slate roof the property benefits from a splendid 'dining' kitchen, well-appointed bathroom, delightful 2nd floor shower room, neutral decor, electric central heating and uPVC double glazing.

Outside, the property features terraced garden ground to the rear, from which there will be a rooftop view over the village itself to the North Channel beyond. The garden will require to be landscaped.

Situated in the heart of Portpatrick, residents of this property will enjoy easy access to a wide range of local amenities, including shops, restaurants, and recreational facilities. With the promenade just a short walk away, breathtaking sea views and invigorating coastal walks are right on your doorstep.

Portpatrick's charm lies in its rich history, quaint streets, and friendly community, offering a peaceful and relaxed lifestyle for residents of all ages. For those seeking a perfect blend of seaside tranquillity and modern convenience, this terraced house presents an ideal opportunity.

  • Situated within the most popular seaside village of Portpatrick
  • Only a stones throw from the promenade
  • Spacious family accommodation
  • Splendid 'dining' kitchen
  • Well-appointed ground floor bathroom
  • Delightful 2nd floor shower room
  • Neutral decor throughout
  • Electric central heating
  • Double glazing
  • Terraced garden ground to the rear


Council Tax

D

Energy Rating

EPC = E

Viewing

By appointment with SWPC.

Entry

Negotiable.