McCulloch Coaches

Stoneykirk. DG9 9DH

Offers Over - £150,000

Photograph of McCulloch Coaches, Stoneykirk

Photograph Gallery

Please click on a thumbnail, below, to view a photograph in more detail.

Photograph of McCulloch Coaches, Stoneykirk Photograph of Land Photograph of Yard Photograph of Yard Photograph of Garage Photograph of Garage Photograph of Garage

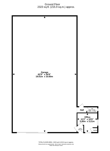
Floor Plan

Please click on the floor plan, below, to enlarge.

Floor Plan for McCulloch Coaches, Stoneykirk

Property Overview


0
Bedrooms
0
En-suite
0
Public Rooms
0
Bathrooms
No
Garden

Presenting a rare opportunity to acquire a commercial proposition situated on the outskirts of the charming village of Stoneykirk, occupying a prominent roadside position that ensures both accessibility and visibility. Formerly a bus depot, the property presents exceptional commercial potential, making it an enticing prospect for a wide range of buyers. The heart of the property is complemented by a substantial workshop, which is equipped with three-phase power, a four-post electric vehicle lift, and an inspection pit within the garage, catering perfectly to automotive enthusiasts or those seeking a base for a business venture. The workshop also features an office and a convenient WC, ensuring practicality and comfort for daily operations. Throughout, the property boasts a sense of robust functionality, with ample yard space providing extensive off-road parking for multiple vehicles. With its blend of flexibility and on-site amenities, this former bus garage offers a compelling opportunity for those looking to create a bespoke working environment in a convenient location. It may be possible to apply for planning permission to redevelop the site into residential units, subject to local authority approval.

 

  • A rare opportunity to acquire a former bus garage/depot
  • Road side location on the outskirts of the village of Stoneykirk
  • Large workshop with an office and WC
  • Ample yard space for off-road parking
  • Three-phase power to the workshop
  • Four post electric vehicle lift
  • Inspection pit within the garage
  • Will lend itself to a variety of uses
  • Possible change of use to residential development, subject to local authority approval

 


Schedule

(Brochure - McCulloch Coaches, Stoneykirk.pdf)

Schedule Details Prepared:
24th April 2026


Council Tax

TBC

Energy Rating

TBC

Viewing

By appointment with SWPC.

Entry

Negotiable.

More properties in Stoneykirk (4)


Photograph of 8 Maitland Terrace, Stoneykirk

8 Maitland Terrace, Stoneykirk

PLEASE NOTE that a closing date for offers has been set for 12noon Monday 27th April 2026. All formal offers should be submitted to SWPC through a Scottish solicitor by the appointed time. Offers Over - £150,000


Photograph of Greyhill Steading Development, Stoneykirk

Greyhill Steading Development, Stoneykirk

Price reduced from £210,000 to Offers Around - £190,000