31B High Street

Stranraer. DG9 7LL

TO LET - £375

Photograph of 31B High Street, Stranraer

Photograph Gallery

Please click on a thumbnail, below, to view a photograph in more detail.

Photograph of 31B High Street, Stranraer

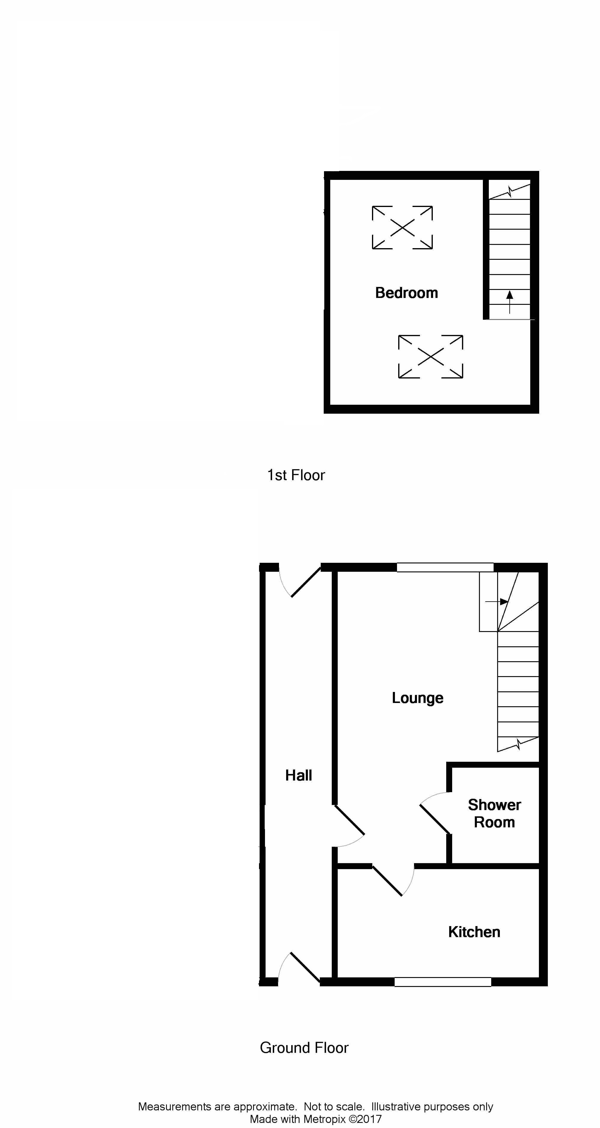
Floor Plan

Please click on the floor plan, below, to enlarge.

Floor Plan for 31B High Street, Stranraer

Property Overview


1
Bedrooms
0
En-suite
1
Public Rooms
1
Bathrooms
Yes
Garden

Located in a central position within the town and close to all major amenities.

Electric heating and double glazing.

Potential tenants must complete an application form, as well as provide 2 references.

£375pcm + £375 deposit. 

EPC = D     CT = A

LOUNGE, KITCHEN, SHOWER ROOM, BEDROOM, GARDEN



Council Tax

A

Energy Rating

EPC = D

Viewing

By appointment with SWPC.

Entry

Negotiable.

More properties in Stranraer (48)


Photograph of 15 Gallowhill Rise, Stranraer

15 Gallowhill Rise, Stranraer

PLEASE NOTE that a closing date for offers has been set for 12noon Friday 1st May 2026. All formal offers should be submitted to SWPC through a Scottish solicitor by the appointed time. Offers Over - £115,000


Photograph of 21 St Johns Street, Stranraer

21 St Johns Street, Stranraer

PRICE CHANGE - Offers Over - £90,000


Photograph of 'The Grapes', 4-6 Bridge Street, Stranraer

'The Grapes', 4-6 Bridge Street, Stranraer

PRICE REDUCTION from £235,000 - Offers around - £220,000


Photograph of 9 Lewis Street, Stranraer

9 Lewis Street, Stranraer

PRICE REDUCTION Offers Over - £129,000