24 Mayfield Avenue

Stranraer. DG9 0HG

UNDER OFFER - £210,000

Photograph of 24 Mayfield Avenue, Stranraer

Photograph Gallery

Please click on a thumbnail, below, to view a photograph in more detail.

Photograph of 24 Mayfield Avenue, Stranraer Photograph of Garden Photograph of Hall Photograph of Hall Photograph of Lounge Photograph of Lounge Photograph of Dining Room Photograph of Dining Room Photograph of Conservatory Photograph of Conservatory Photograph of Kitchen Photograph of Kitchen Photograph of Utility Room Photograph of Utility Room Photograph of Shower Room 2 Photograph of Bedroom 1 Photograph of Bedroom 2 Photograph of Bedroom 2 Photograph of View Photograph of Bedroom 3 Photograph of Study Photograph of Shower Room Photograph of Garden Photograph of Garden Photograph of Garden Photograph of Garden Photograph of Garden Photograph of Garden Photograph of Garden Photograph of Garden

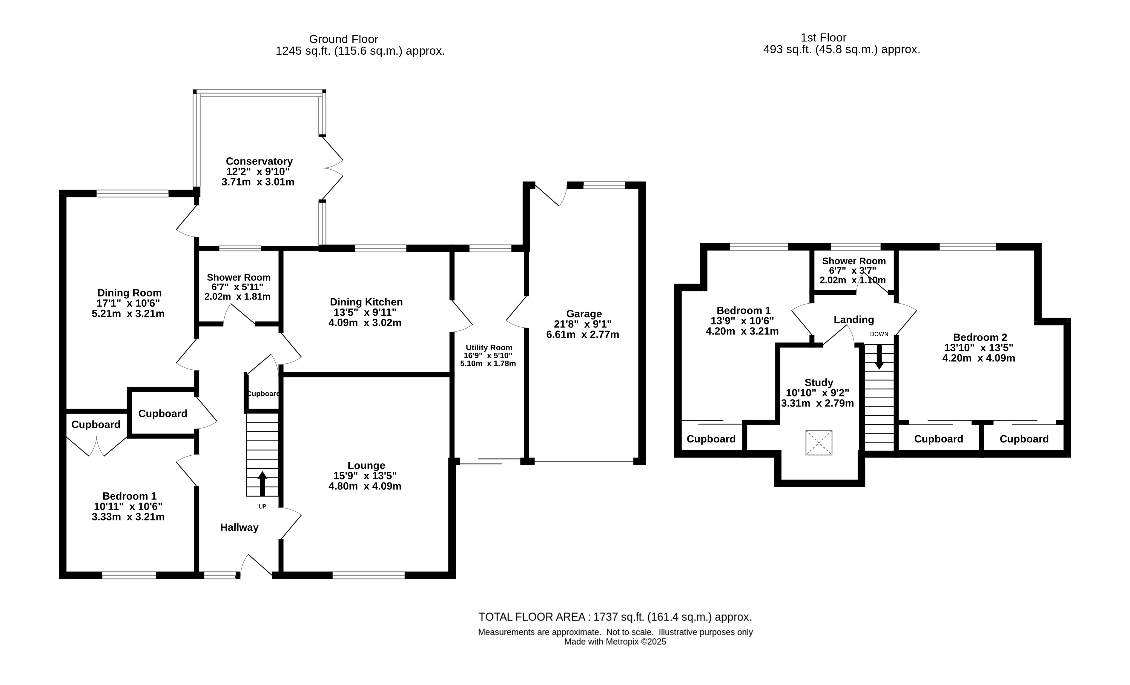
Floor Plan

Please click on the floor plan, below, to enlarge.

Floor Plan for 24 Mayfield Avenue, Stranraer

Property Overview


4
Bedrooms
0
En-suite
3
Public Rooms
2
Bathrooms
Yes
Garden

PLEASE NOTE that a closing date for offers has been set for 12noon Friday 22nd August 2025. All formal offers should be submitted to SWPC by the appointed time.

 

Located in a most sought-after residential locale, this 4 bedroom detached house offers a blend of modern comfort, boasting an outlook over picturesque farmland to the rear.

Step inside to discover a spacious family home thoughtfully laid out over two levels, providing ample room for comfortable living.

Of traditional construction under a tile and felt roof the property benefits from a splendid conservatory to the rear, 'dining' kitchen, shower rooms on both levels, flexible accommodation, gas fired central heating and uPVC double glazing.

Outside, generous garden grounds offer a perfect space for keen gardeners and present a perfect for outdoor entertaining. There is the added benefit of off-road parking.

Perfectly positioned to enjoy the serenity of countryside views to the rear while remaining within easy reach of local amenities and transport links, this home presents a unique opportunity to experience the best of both worlds.

 

  • Most popular residential location
  • Outlook to the rear over farmland
  • Spacious family accommodation laid out over two levels
  • Splendid conservatory to the rear
  • 'Dining' Kitchen
  • Shower rooms on both levels
  • Gas central heating
  • Double glazing
  • Generous garden grounds
  • Off-road parking


Council Tax

F

Energy Rating

EPC = D

Viewing

By appointment with SWPC.

Entry

Negotiable.

More properties in Stranraer (54)


Photograph of 75 Sheuchan Street, Stranraer

75 Sheuchan Street, Stranraer

PLEASE NOTE: A closing date has been set for Monday, 20th of October at 12 Noon. All formal offers should be submitted via a Scottish solicitor to SWPC by the appointed time. Offers Over - £90,000


Photograph of 11c Dunbar Court, Stranraer

11c Dunbar Court, Stranraer

PRICE REDUCTION: Offers Over - £54,995


Photograph of 3 Clenoch Street, Stranraer

3 Clenoch Street, Stranraer

PRICE CHANGE - Offers Over - £66,000


Photograph of 'The Grapes', 4-6 Bridge Street, Stranraer

'The Grapes', 4-6 Bridge Street, Stranraer

PRICE REDUCTION - Offers around - £235,000


Photograph of 'Wellington House', Stranraer

'Wellington House', Stranraer

Price Reduction Offers Over - £219,500


Photograph of 9 Lewis Street, Stranraer

9 Lewis Street, Stranraer

PRICE REDUCTION Offers Over - £129,000

Galloway & Ayrshire Properties

You may also like the following properties from our partners Galloway & Ayrshire Properties.


Photograph of 'The Meadows', London Road, Stranraer

'The Meadows', London Road, Stranraer

PLEASE NOTE: A closing date has been set for Monday, 20th of October at 12 Noon. All formal offers should be submitted via a Scottish solicitor to SWPC by the appointed time. Offers Over - £325,000