1 Rosewood, Glen Road

Leswalt. DG9 0LL

PRICE REDUCTION Offers Over - £135,000

Photograph of 1 Rosewood, Glen Road, Leswalt

Photograph Gallery

Please click on a thumbnail, below, to view a photograph in more detail.

Photograph of 1 Rosewood, Glen Road, Leswalt Photograph of Garden 2 Photograph of Lounge Photograph of Lounge 2 Photograph of Woodburner Photograph of Kitchen Photograph of Kitchen 2 Photograph of Shower Room Photograph of Bedroom 1a Photograph of Bedroom 1b Photograph of Bedroom 2 Photograph of Bedroom 3 Photograph of Bedroom 4 Photograph of Bathroom Photograph of Garden Photograph of Garden 3

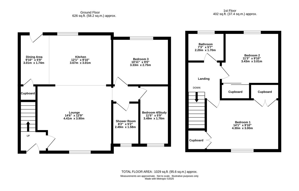
Floor Plan

Please click on the floor plan, below, to enlarge.

Floor Plan for 1 Rosewood, Glen Road, Leswalt

Property Overview


4
Bedrooms
0
En-suite
1
Public Rooms
2
Bathrooms
Yes
Garden

Located within the popular village of Leswalt, this spacious 4-bedroom end of terrace house offers flexible use of accommodation over 2 levels.

Extended to provide spacious family living, the property benefits from a splendid shaker design 'dining' kitchen, a recently installed shower room, the addition of a wood-burning stove, uPVC double glazing, electric heating and PV solar panels.

The seamless flow of the interior extends to the easily maintained garden ground, with the added benefit of off-road parking.

  • Located within the popular village of Leswalt
  • Extended to provide well-proportioned family accommodation
  • Splendid shaker design 'dining' kitchen
  • Recently installed shower room
  • The addition of a wood-burning stove
  • PV solar panels
  • Electric heating
  • Double glazing
  • Easily maintained garden ground
  • Off-road parking


General

It is understood that, on achieving a satisfactory price, the vendors will include fitted floor coverings and blinds throughout.

Services

Mains water, drainage and electricity. Wood burning stove. PV solar panels.

Council Tax

C

Energy Rating

EPC = D

Viewing

By appointment with SWPC.

Entry

Negotiable.

More properties in Leswalt (4)


Photograph of 1 Rosewood, Glen Road, Leswalt

1 Rosewood, Glen Road, Leswalt

PRICE REDUCTION Offers Over - £135,000


Photograph of Plot 2, 12 Glen Road, Leswalt

Plot 2, 12 Glen Road, Leswalt

PRICE CHANGE - Offers over - £38,000


Photograph of Plot 1, 10 Glen Road, Leswalt

Plot 1, 10 Glen Road, Leswalt

PRICE CHANGE - Offers Over - £32,500