4a Main Street

Portpatrick. DG9 8JJ

Guide Price - £169,995

Photograph of 4a Main Street, Portpatrick

Photograph Gallery

Please click on a thumbnail, below, to view a photograph in more detail.

Photograph of 4a Main Street, Portpatrick Photograph of Hallway Photograph of Hallway Photograph of Lounge Photograph of Lounge Photograph of Lounge Photograph of Kitchen Photograph of Kitchen Photograph of Kitchen Photograph of Dining Room Photograph of Dining Room Photograph of Shower Photograph of Bedroom 1 Photograph of Bedroom 2 Photograph of Bedroom 4 Photograph of Bedroom 3 Photograph of WC Photograph of Garden Photograph of Garden Photograph of 4a Main Street

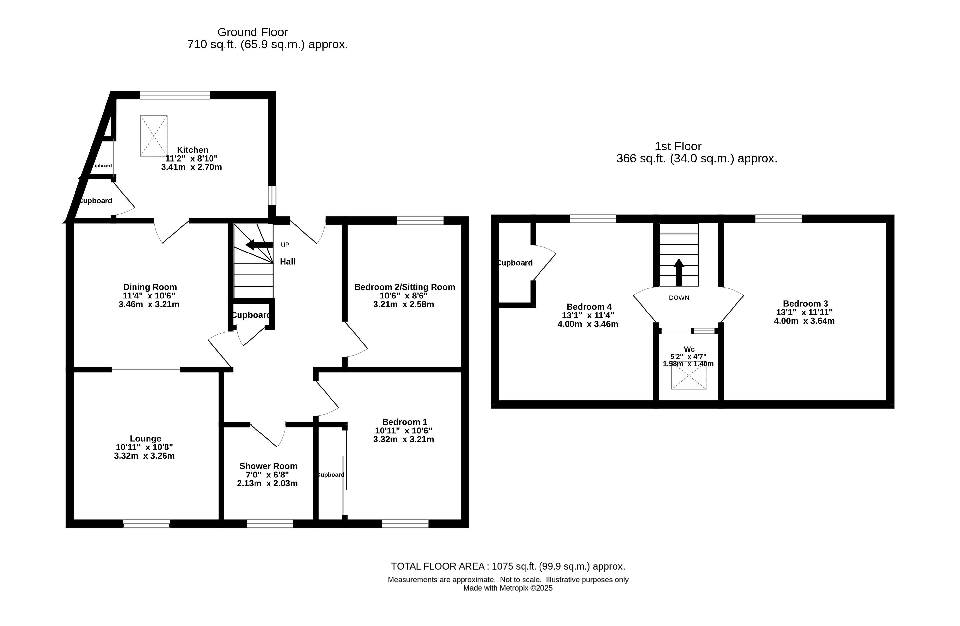
Floor Plan

Please click on the floor plan, below, to enlarge.

Floor Plan for 4a Main Street, Portpatrick

Property Overview


4
Bedrooms
0
En-suite
0
Public Rooms
2
Bathrooms
Yes
Garden

Situated within the charming village of Portpatrick, this charming 4-bedroom flat offers a unique blend of tranquillity and coastal living. Just a stone's throw from the inviting promenade, this property presents a rare opportunity to embrace a lifestyle of comfort and convenience in a sought-after location.

Spread across the first and second floors, the generous family accommodation exudes a warm and inviting atmosphere. The homely decor enhances the cosy ambience, creating a pleasant relaxed environment. The heart of the home is the maple design kitchen which is laid out in an open plan basis with the dining room and the main lounge.

Of traditional construction under a shared slate & felt roof the property benefits from a wood-burning stove, delightful 1st floor shower room, 2nd floor WC, uPVC double glazing and electric central heating.

Outside, the shared garden ground to the rear offers a peaceful retreat to unwind and enjoy the outdoors.

 

  • Located within the popular village of Portpatrick
  • Only a stones throw from the promenade
  • Generous family accommodation laid out over the first & second floors
  • Warm, homely decor throughout the property
  • Maple design kitchen
  • Delightful 1st floor shower room
  • 2nd floor WC
  • Electric central heating
  • Wood-burning stove
  • Shared garden ground to the rear


Council Tax

C

Energy Rating

EPC = D

Viewing

By appointment with SWPC.

Entry

Negotiable.