52 High Street

Stranraer. DG9 7LP

Offers Over - £80,000

Photograph of 52 High Street, Stranraer

Photograph Gallery

Please click on a thumbnail, below, to view a photograph in more detail.

Photograph of 52 High Street, Stranraer Photograph of Dining Area Photograph of Dining Area Photograph of Kitchen Photograph of Lounge Photograph of Lounge Photograph of Shower Photograph of Shower Photograph of Porch Photograph of Landing Photograph of Bedroom 2 Photograph of Bedroom 2 Photograph of Bedroom 3 Photograph of Bedroom 3 Photograph of Bedroom 3 Photograph of Bedroom 3 Photograph of Garden Photograph of Garden Photograph of Old Photograph

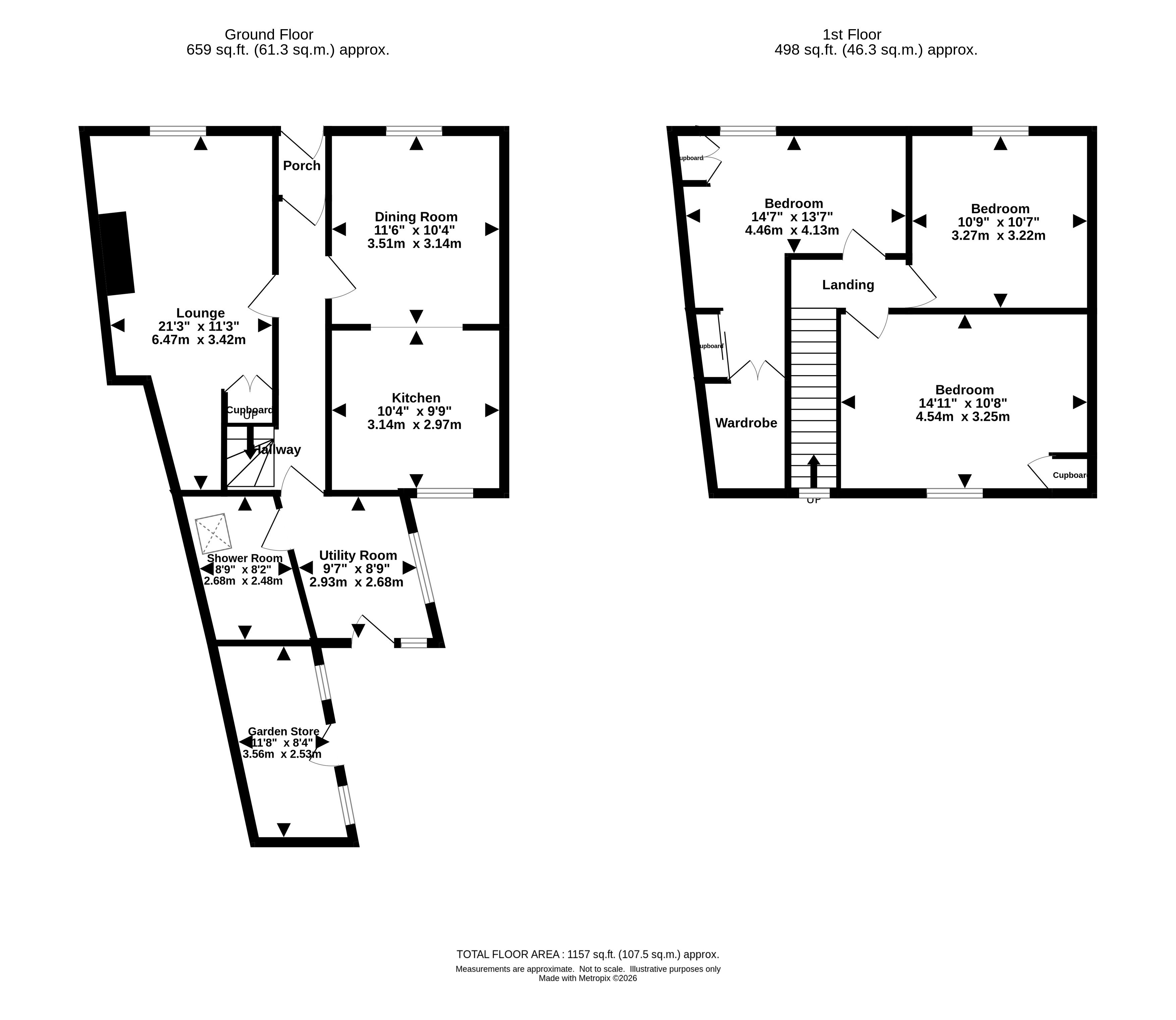
Floor Plan

Please click on the floor plan, below, to enlarge.

Floor Plan for 52 High Street, Stranraer

Property Overview


3
Bedrooms
0
En-suite
1
Public Rooms
1
Bathrooms
Yes
Garden

Located just a short stroll from both the town centre and the picturesque seafront, this charming three-bedroom terraced villa presents an exceptional opportunity to acquire a much-loved family home, cherished by the same family for three generations.

Of traditional construction under a re-slated roof the property benefits from a spacious dining kitchen, ideal for family gatherings, a well-appointed shower room, gas central heating and uPVC double glazing.

The easily maintained, walled garden ground further enhances the appeal, offering a tranquil setting for outdoor enjoyment without the burden of extensive upkeep.

  • A well-maintained family villa
  • Situated only a short walk from the town centre and the seafront
  • Owned by the same family for three generations
  • Spacious dining kitchen
  • Well-appointed shower room
  • Gas central heating and uPVC double glazing
  • Easily maintained garden ground


Council Tax

C

Energy Rating

EPC = D

Viewing

By appointment with SWPC.

Entry

Negotiable.

More properties in Stranraer (53)


Photograph of 2 Dalrymple Terrace, Stranraer

2 Dalrymple Terrace, Stranraer

PRICE REDUCTION: Offers Over - £89,995


Photograph of 58 Lochryan Street, Stranraer

58 Lochryan Street, Stranraer

PRICE REDUCTION: Offers Over - £79,995


Photograph of 25 Ailsa Gait Way, Stranraer

25 Ailsa Gait Way, Stranraer

PLEASE NOTE: A closing date for offers has been set for 12 noon Wednesday 13th of May 2026. All formal offers should be submitted to SWPC through a Scottish solicitor by the appointed time. Offers Over - £155,000


Photograph of 21 St Johns Street, Stranraer

21 St Johns Street, Stranraer

PRICE CHANGE - Offers Over - £90,000


Photograph of 'The Grapes', 4-6 Bridge Street, Stranraer

'The Grapes', 4-6 Bridge Street, Stranraer

PRICE REDUCTION from £235,000 - Offers around - £220,000


Photograph of 9 Lewis Street, Stranraer

9 Lewis Street, Stranraer

PRICE REDUCTION Offers Over - £129,000