'The Grain Loft', Sandmill

Stranraer. DG9 8QJ

Offers Over - £150,000

Photograph of 'The Grain Loft', Sandmill, Stranraer

Photograph Gallery

Please click on a thumbnail, below, to view a photograph in more detail.

Photograph of 'The Grain Loft', Sandmill, Stranraer Photograph of Sun Lounge Photograph of Lounge Photograph of Lounge Photograph of Kitchen Photograph of Kitchen Photograph of Bathroom Photograph of Bedroom 1 Photograph of Bedroom 1 Photograph of Bedroom 1 shower Photograph of Bedroom 2 Photograph of Rear elevation

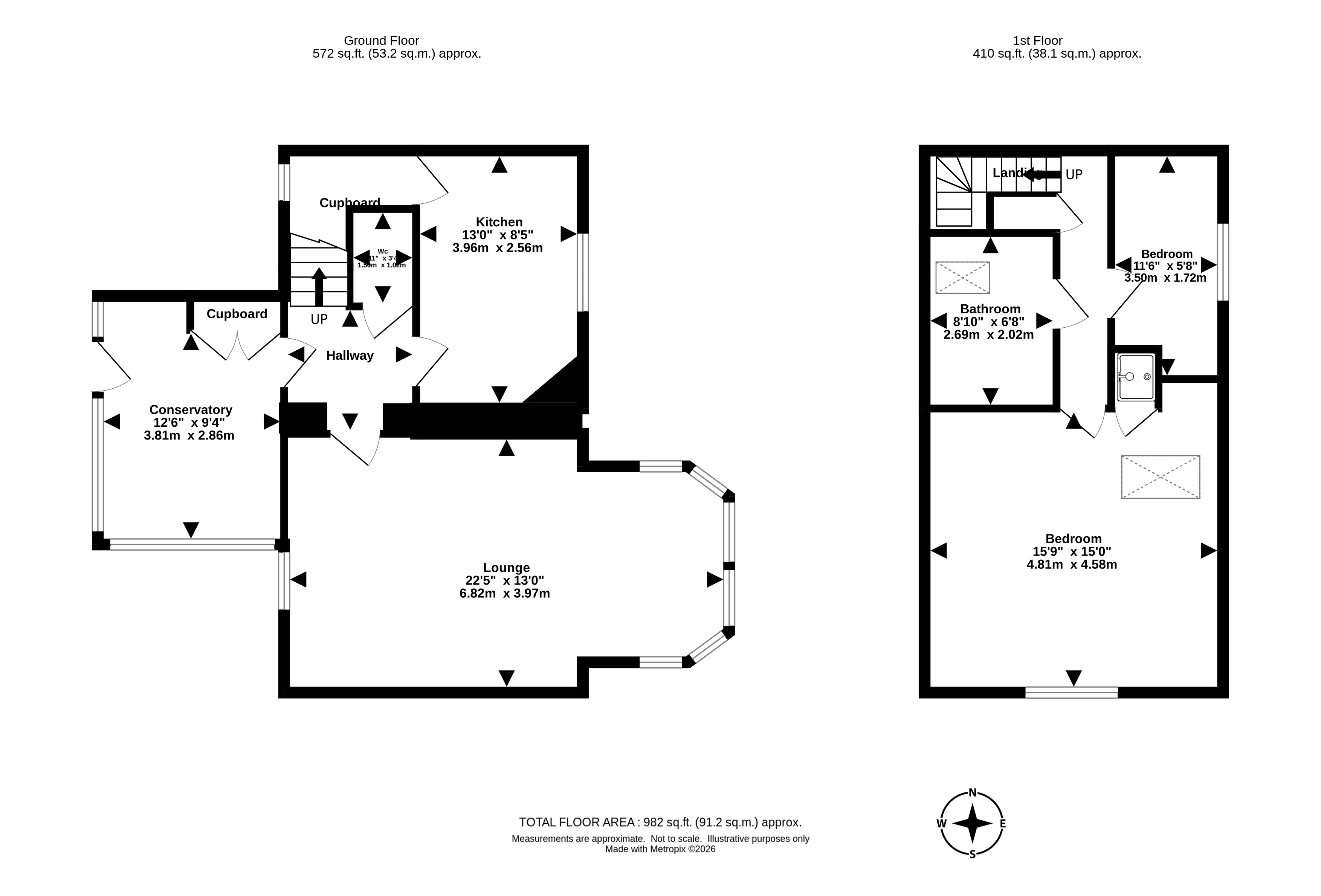
Floor Plan

Please click on the floor plan, below, to enlarge.

Floor Plan for 'The Grain Loft', Sandmill, Stranraer

Property Overview


2
Bedrooms
0
En-suite
2
Public Rooms
1
Bathrooms
No
Garden

Please note, this property is available with “The Wee Byre” for offers over £500,000.

Located in a tranquil setting, this exquisite two-bedroom stone cottage offers the perfect blend of period charm and contemporary luxury. Arranged over two levels, the property has been meticulously renovated to the highest of standards, ensuring a home that is both stylish and supremely comfortable. Upon entering, you are greeted by a welcoming atmosphere and an abundance of natural light, highlighting the attractive internal woodwork that flows seamlessly throughout the cottage. The heart of the home is a splendid medium oak kitchen, beautifully crafted to provide both functionality and elegance. The well-appointed bathroom features modern fixtures and a refined finish, creating a sanctuary for relaxation. Warmth and comfort are guaranteed with gas central heating and the added luxury of underfloor heating on the ground floor, ensuring a cosy environment whatever the season. Every detail has been carefully considered, from the quality of the finishes to the practical layout, making this cottage a truly special place to call home.

Stepping outside, the property benefits from a dedicated parking area within a private courtyard, offering both convenience and security for residents. The attractive stone façade of the cottage is complemented by the well-maintained communal areas, creating an inviting approach that is sure to impress visitors and passers-by alike. This charming cottage presents a rare opportunity to acquire a beautifully finished residence with all the benefits of modern living, set within a picturesque and highly sought-after location.

  • An attractive stone cottage laid out over two levels
  • Renovated to the highest of standards
  • Splendid medium oak kitchen
  • Well-appointed bathroom and a convenient WC and WHB downstairs.
  • Attractive internal woodwork
  • Gas central heating with ground floor underfloor heating
  • Dedicated parking space


Council Tax

D

Energy Rating

EPC = D

Viewing

By appointment with SWPC.

Entry

Negotiable.

More properties in Stranraer (47)


Photograph of 21 St Johns Street, Stranraer

21 St Johns Street, Stranraer

PRICE CHANGE - Offers Over - £90,000


Photograph of 'The Grapes', 4-6 Bridge Street, Stranraer

'The Grapes', 4-6 Bridge Street, Stranraer

PRICE REDUCTION from £235,000 - Offers around - £220,000


Photograph of 9 Lewis Street, Stranraer

9 Lewis Street, Stranraer

PRICE REDUCTION Offers Over - £129,000