31 Glenwell Avenue

Stranraer. DG9 7BA

Offers Over - £125,000

Photograph of 31 Glenwell Avenue , Stranraer

Photograph Gallery

Please click on a thumbnail, below, to view a photograph in more detail.

Photograph of 31 Glenwell Avenue , Stranraer Photograph of Porch Photograph of Kitchen Photograph of Kitchen Photograph of Kitchen Photograph of Dining Room Photograph of Lounge Photograph of Lounge Photograph of Conservatory Photograph of Hallway Photograph of Hallway Photograph of Landing Photograph of Bedroom 1 Photograph of Bedroom 1 Photograph of Bedroom 2 Photograph of Bathroom Photograph of Bathroom Photograph of Outside Photograph of Outside Photograph of Garden Photograph of Garden Photograph of Outside

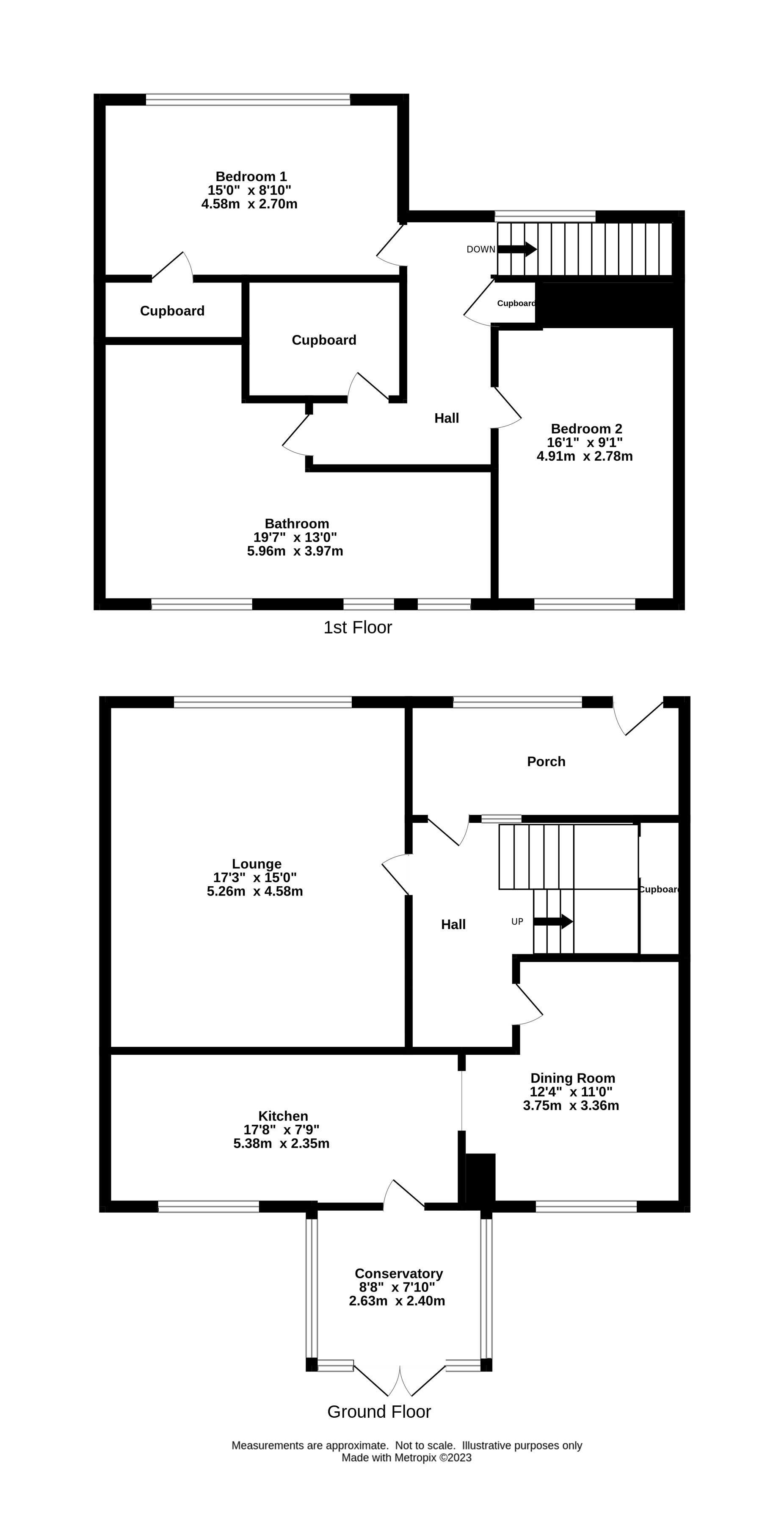
Floor Plan

Please click on the floor plan, below, to enlarge.

Floor Plan for 31 Glenwell Avenue , Stranraer

Property Overview


2
Bedrooms
0
En-suite
1
Public Rooms
1
Bathrooms
Yes
Garden

Located within a popular residential development towards the southern perimeter of town and yet within easy reach of the town centre, this is a mid-terrace villa which provides excellent family accommodation over two floors. The property is in immaculate condition throughout and benefits from a splendid contemporary kitchen, luxury bathroom, the addition of a conservatory, woodburning stove, attractive internal decor, Fischer heating (with solar panels), and uPVC double glazing.

Of traditional construction under a tiled roof, the property also benefits from having off-road parking to the rear.

Set within its own recently landscaped and easily maintained garden ground.  

 

  • Spacious family villa
  • Located within a popular residential development
  • Within easy reach of the town centre and all major amenities
  • Immaculate condition throughout
  • Splendid contemporary kitchen and luxury bathroom
  • Tasteful décor
  • uPVC double glazing windows
  • Set within its own area of recently landscaped and easily maintained garden ground
  • Added benefit of off-road parking


Council Tax

C

Energy Rating

EPC = D

Viewing

By appointment with SWPC.

Entry

Negotiable.

More properties in Stranraer (44)


Photograph of 21 St Johns Street, Stranraer

21 St Johns Street, Stranraer

PRICE CHANGE - Offers Over - £90,000


Photograph of 'The Grapes', 4-6 Bridge Street, Stranraer

'The Grapes', 4-6 Bridge Street, Stranraer

PRICE REDUCTION from £235,000 - Offers around - £220,000


Photograph of 9 Lewis Street, Stranraer

9 Lewis Street, Stranraer

PRICE REDUCTION Offers Over - £129,000