3 Dalriada Avenue

Stranraer. DG9 0HD

Offers Over - £225,000

Photograph of 3 Dalriada Avenue, Stranraer

Photograph Gallery

Please click on a thumbnail, below, to view a photograph in more detail.

Photograph of 3 Dalriada Avenue, Stranraer Photograph of Hall Photograph of Hall Photograph of Lounge Photograph of Lounge Photograph of Kitchen Photograph of Kitchen Photograph of Kitchen Photograph of Sun Lounge Photograph of Bedroom 4 Photograph of Landing Photograph of Bathroom Photograph of Bathroom Photograph of Bedroom 1 Photograph of Bedroom 1 Photograph of Bedroom 2 Photograph of Bedroom 3 Photograph of Garden Photograph of Garden Photograph of Garden

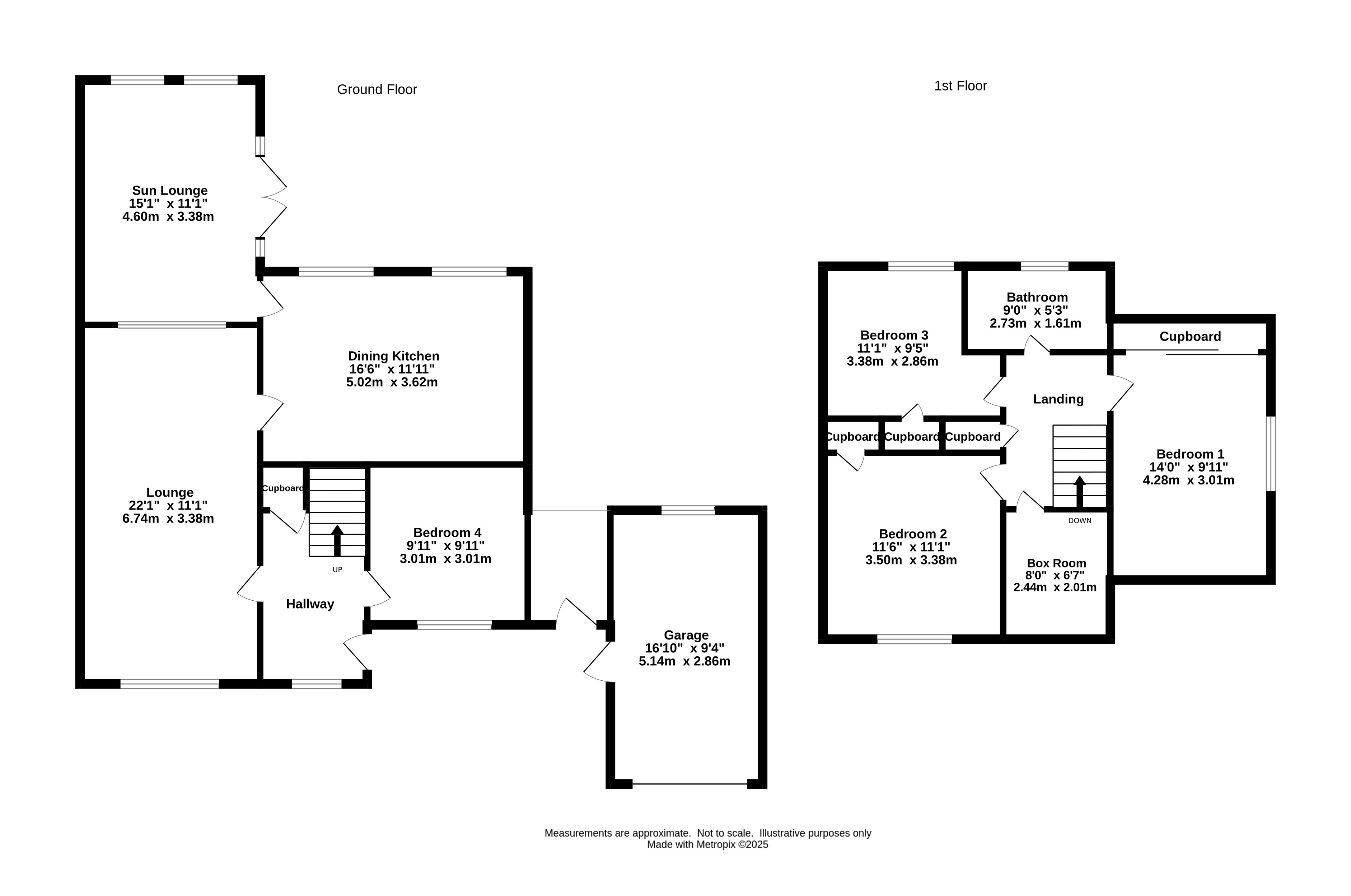
Floor Plan

Please click on the floor plan, below, to enlarge.

Floor Plan for 3 Dalriada Avenue, Stranraer

Property Overview


4
Bedrooms
0
En-suite
2
Public Rooms
1
Bathrooms
Yes
Garden

Nestled in the heart of a highly sought-after residential area, this exceptional 4-bedroom semi-detached residence offers well-proportioned family accommodation over two levels. Boasting an extended this immaculately presented villa is ideally situated just a stone's throw away from Sheuchan Primary School and the shores of Loch Ryan, making it an ideal abode for young families.

Step inside to discover a home that has been lovingly renovated to the highest standards, with features such as oak internal doors, oak spindle & rail staircase, oil central heating and uPVC double glazing creating a welcoming ambience throughout. The highlight of the property is undoubtedly the stunning dining kitchen, a spacious hub ideally suited to family gatherings.
The bathroom exudes luxury with its modern fixtures and fittings, offering a place of relaxation and rejuvenation. The property also benefits from a monoblock driveway that comfortably accommodates multiple vehicles, ensuring that parking is never a concern for residents and guests alike.

  • An extended semi-detached villa located within a most popular residential area
  • Only a short walk from Sheuchan Primary School and the shores of Loch Ryan
  • Immaculate condition throughout having been fully modernised
  • Splendid contemporary 'dining' kitchen
  • Delightful bathroom
  • Oak internal doors
  • Oil central heating and uPVC double glazing
  • New uPVC roof-line products
  • Fully landscaped garden grounds
  • Detached garage and ample off-road parking


Services

Mains electricity, drainage, and water. Oil fired central heating.

Council Tax

D

Energy Rating

EPC = D

Viewing

By appointment with SWPC.

Entry

Negotiable.

More properties in Stranraer (55)


Photograph of 75 Sheuchan Street, Stranraer

75 Sheuchan Street, Stranraer

PLEASE NOTE: A closing date has been set for Monday, 20th of October at 12 Noon. All formal offers should be submitted via a Scottish solicitor to SWPC by the appointed time. Offers Over - £90,000


Photograph of 11c Dunbar Court, Stranraer

11c Dunbar Court, Stranraer

PRICE REDUCTION: Offers Over - £54,995


Photograph of 3 Clenoch Street, Stranraer

3 Clenoch Street, Stranraer

PRICE CHANGE - Offers Over - £66,000


Photograph of 'The Grapes', 4-6 Bridge Street, Stranraer

'The Grapes', 4-6 Bridge Street, Stranraer

PRICE REDUCTION - Offers around - £235,000


Photograph of 'Wellington House', Stranraer

'Wellington House', Stranraer

Price Reduction Offers Over - £219,500


Photograph of 9 Lewis Street, Stranraer

9 Lewis Street, Stranraer

PRICE REDUCTION Offers Over - £129,000

Galloway & Ayrshire Properties

You may also like the following properties from our partners Galloway & Ayrshire Properties.