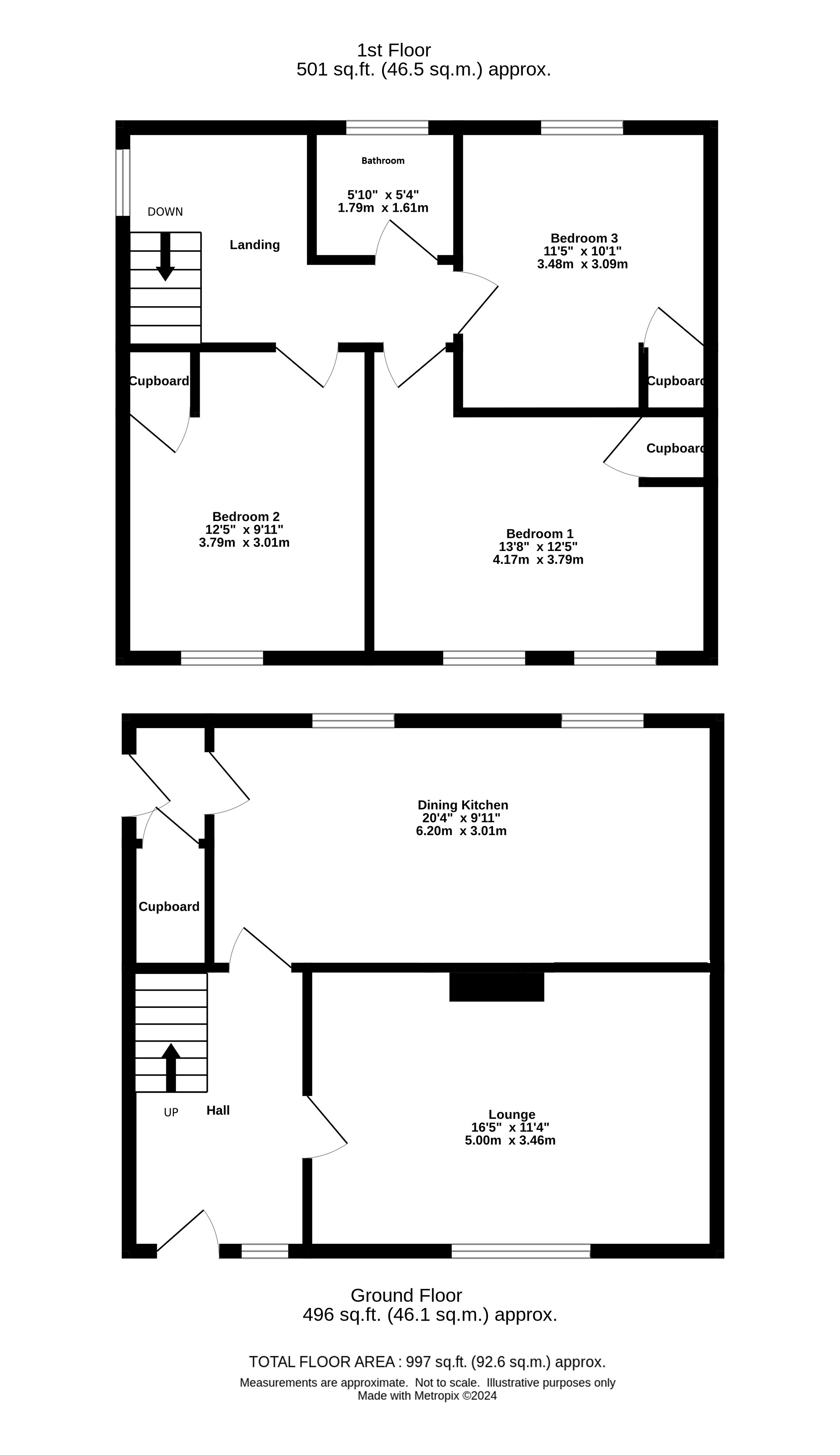
Situated within a popular residential area, this well-proportioned three-bedroom semi-detached family villa presents an exceptional opportunity for those seeking comfort, style, and convenience. The home enjoys delightful views over open parkland to farmland beyond.
Step inside to discover a newly installed dining kitchen, thoughtfully designed for both culinary pursuits and entertaining. The newly fitted bathroom features contemporary fixtures, while new internal doors, fresh decor, and new floor coverings throughout add a sense of refinement and freshness. Of traditional construction under a re-tiled roof, the property also benefits from central heating, uPVC double glazing, and external insulation, ensuring warmth and energy efficiency year-round.
Outside, the property is set amidst its own easily maintained garden ground.
With its blend of modern upgrades, charming outlooks, and easily maintained gardens, this property stands as a truly desirable home in a sought-after location ideally suited to families and first-time buyers alike.
B
EPC = D
By appointment with SWPC.
Negotiable.